NBS Source
I'm a manufacturer

Electric Meter Box for EWI

Verified by manufacturer 5 months ago

Access Building Products Ltd

Insulated electric meter box for use with external wall insulation (EWI).

Jump to:
+44 (0)1423 874753 Website

Application

Wall mounted electric meter box suitable for use with external wall insulation.

Description

Designed for use in PAS2035 Retrofit projects where external wall insulation is being added. Fits over the existing electricity meter housing which avoids the need to have the meter moved.


Made to order in sizes to suit the existing meter and depth of insulation being applied to the exterior of the property. The product will maintain insulation, draught proofing and prevent thermal bridging while still providing rapid access to electricity meters in homes where EWI is being added.


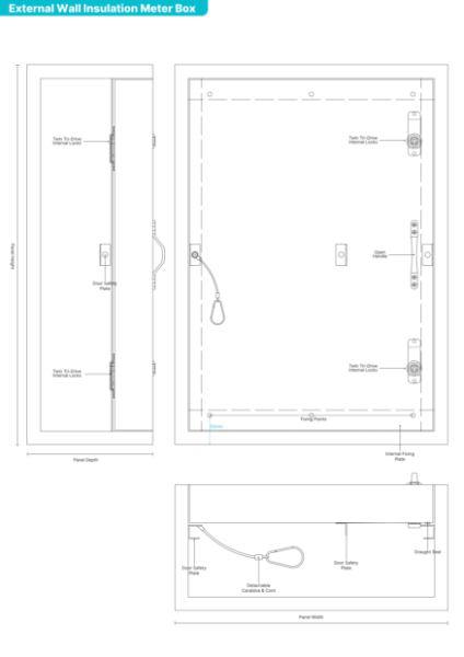
The product boasts a number of innovative design features geared towards helping reduce heat loss and maintaining weatherproofing (Patent Application No. 2116780.4.). The door is secured by twin tri-drive locks which are located at the top and bottom of the door to ensure even compression against the door seal. The door is fitted with an opening handle for convenience and is secured by a safety wire and clip to prevent the door being over extended when opening. The door cill is gently profiled to prevent water ingress.


Features and benefits:

  • Premium quality electricity meter box, insulated and air sealed designed for use with external cladding.
  • Unique design Patent Application No. 2116780.4.
  • Designed and made in the UK.
  • Calculated U value 0.35 W/(m²·K).
  • Fire retardant.
  • Bespoke sizes and RAL colours available.

General information

Color

White

Other

Guidance for specification option:

RAL colours available on request.

Finish

Powder-coated

Material

Zintec steel

Shape

Square

Rectangle

Length

Bespoke

Width

Bespoke

Height

Bespoke

Warranty description

Two year

Uniclass

Pr_80_77_28_52 Meter cabinetsPrimary

CAWS

P31/400 Meter cabinets

SKU Code

INS-MET-EB

Specification data - Meter cabinets

Classification data

Meter housing

Cabinet complete with seal and locking mechanism for security.

Dimensions

Guidance for specification option:

Made to order. Consult manufacturer and insert requirements.

  • When ordering ensure the meter box is 10 mm to 25 mm deeper than the finished external wall insulation build up. 
  • Minimum internal width 300 mm.
  • Minimum depth 85 mm.

Manufacturer guidance

This product can be made to custom sizes - please contact the manufacturer for a quotation.

U-value

0.35 W/(m²·K).

Surface material

Zintec steel.

Surface finish

Powder-coated.

Colour

Pure white, RAL 9010.

Guidance for specification option:

As standard.

RAL.

Guidance for specification option:

RAL colours available on request.

Manufacturer guidance

This product can be made to custom colours - please contact manufacturer for a quotation. 

Insulation

Mineral wool.

Lock

Twin tri-drive locks.

Guidance for specification option:

The door is secured by twin tri-drive locks which are located at the top and bottom of the door to ensure even compression against the door seal. 

Sustainability data

Contains Red List materials

No

Country of material origin

United Kingdom

Country of product manufacture

United Kingdom

Material

Zintec steel

Recyclability

Steel 100%, Mineral wool insulation can be re-used but is not currently recyclable

Recycled content

As defined in clause 7.8 of BS EN ISO 14021

40 %

BIM objects

Platform Compatible Version
Revit
-

1

Literature

External Wall Insulation EWI Tech

External Wall Insulation EWI Tech

Insulated Electricity Meter Box Brochure

Insulated Electricity Meter Box Brochure

Insulated Electricity Meter Box - Size & Fitting Advice

Insulated Electricity Meter Box - Size & Fitting Advice

Similar products from Access Building Products Ltd

Fire Rated Electricity Meter Overbox

Fire Rated Electricity Meter Overbox

Gas Meter Box for EWI

Gas Meter Box for EWI