NBS Source
I'm a manufacturer

Proximity Reader, P50 - RFID Multi-format Reader 125 kHz

Verified by manufacturer 4 months ago

Paxton Access Ltd Product certifications:
  • UL Listed

    UL Listed

    Certificate type

P series proximity readers are for use with Net2 systems.

Jump to:
BOS
+44 (0)1273 811011 Website

Application

Installation – The reader is wired as shown on the control unit label. Be sure to avoid mounting on metal surfaces or near other proximity readers as this will affect the read range. The cable exits centrally from the back of the reader making drilling and mounting very accurate.


Operation – A token is read by holding it within close proximity of the reader. Once a token has been read the control unit looks up the access permissions of that user. Access is then granted or denied as appropriate. If access is granted the green LED flashes. If access is denied the red LED flashes.


A token is read by holding it within close proximity of the reader. Once a token has been read the control unit looks up the access permissions of that user. The control unit verifies the information and grants or denies access as appropriate. By default, all 3 LEDs are lit. If access is granted, the green LED flashes. If access is denied, the red LED flashes.’ An audible tone is emitted in both cases.

Description

The P50, proximity readers are RFID devices that offer the contactless authentication for system users.


HID Technology has been added to the majority of readers, they and can read HID 125 kHz Proximity tokens, when licensed with an activation card. If required these readers can still be enabled to have Wiegand output, via a separate activation card.


The P38, P50, P75 and P75 Screw connector proximity readers are RFID devices that offer the convenience of contactless authentication for system users.


Features and benefits:

  • For use with Net2.
  • Simple mounting.
  • Range up to 100 mm with proximity cards.
  • Black or white fascias.
  • Low profile - less than 16 mm deep.
  • 4 sizes.

General information

Color

-

Manufacturer guidance

Available in a variety of colours, consult manufacturer for details.

Shape

Rectangle

Length

100 mm

Width

50 mm

Height

15 mm

Warranty description

Five year

Uniclass

Pr_75_30_30_67 Proximity card readersPrimary
Ss_75_40_02_11 Card access control systems
Pr_75_30_30_57 Multiple-technology readers

CAWS

W90/363 Access control units

W90/356 Proximity readers

W90/130 Electronic access control systems

SKU Code

353-100

Product range

Net2
Net2 Readers

Specification data - Proximity card readers

Classification data

Type of operation

Networked.

Operating frequency

125 kHz.

Proximity read range

353–467 mm.

Communication interface

Paxton.
EM4100/02.
MIFARE®.
MIFARE ® Classic.
MIFARE® DESFire® EV1.
MIFARE Plus®.
MIFARE Ultralight®.
MIFARE Ultralight C®.
MIFARE Mini®.
HID® Prox (Activation required).

Integral keypad

Not required.

Mounting position

Surface.

Visual indication

Multi-coloured LED displaying red when access point status secure, green when unlocked.

Guidance for specification option:

By default, all 3 LEDs are lit. If access is granted, the green LED flashes. If access is denied, the red LED flashes.

Audio status indication

Beeper.

Colour

Black.

Impact protection (minimum)

Medium.

Accessories

Cable extension/ type, ≤25 m (Belden 9538).
Cable extension/ type, ≤100 m (Belden 9540).

Cable length

5 m.

Current

170 mA.

Moisture resistance

IPX7.

Operating temperature

-35 to 66°C.

Operating voltage

10–14 V d.c.

BIM objects

BOS

NBS BIM Object Standard

This BIM object has been authored to meet the requirements of the NBS BIM Object Standard.

Find out more about the NBS BIM Object Standard.

Platform Compatible Version
IFC
-

2

Revit
-

2

Product certifications

UL Listed

UL Listed

UL 294 - Access Control System Units CSA C22.2 No. 205 - Signal Equipment - Net2 ACU and readers

Literature

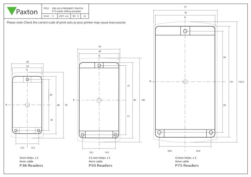
Net2 Proximity readers P38, P50, P75 - drilling template

Net2 Proximity readers P38, P50, P75 - drilling template

Proximity reader, P50 - scale drawing

Proximity reader, P50 - scale drawing

Proximity reader, P50 - instructions

Proximity reader, P50 - instructions

Proximity reader, P50 - data sheet

Proximity reader, P50 - data sheet

Similar products from Paxton Access Ltd

Entry monitor  - Desktop Stand

Entry monitor - Desktop Stand

Net2 Air Bridge

Net2 Air Bridge

Net2 Desktop Reader, USB - Enrolment Reader

Net2 Desktop Reader, USB - Enrolment Reader

Net2 I/O Board 12V 2A PSU, Plastic Cabinet - I/O Module

Net2 I/O Board 12V 2A PSU, Plastic Cabinet - I/O Module

Net2 Metal Reader, Satin Chrome - RFID Reader 125 kHz

Net2 Metal Reader, Satin Chrome - RFID Reader 125 kHz

Net2 Proximity Backbox Reader, Black or White - RFID Multi Format Reader 125 kHz

Net2 Proximity Backbox Reader, Black or White - RFID Multi Format Reader 125 kHz

Net2 Proximity Keypad, KP75 - RFID Proximity Reader 125 kHz

Net2 Proximity Keypad, KP75 - RFID Proximity Reader 125 kHz

Net2 Proximity Long Range Reader - RFID Reader 125 kHz

Net2 Proximity Long Range Reader - RFID Reader 125 kHz

Net2 Proximity Metal Keypad KP75, MIFARE - RFID Multi-format Reader

Net2 Proximity Metal Keypad KP75, MIFARE - RFID Multi-format Reader

Net2 proximity MIFARE Reader, P50 - RFID Multi-format Reader

Net2 proximity MIFARE Reader, P50 - RFID Multi-format Reader