NBS Source
I'm a manufacturer

System 200 - Suspended Ceiling System

Verified by manufacturer 5 months ago

SAS International Ltd Product certifications:
  • Cradle to Cradle Certified

    Cradle to Cradle Certified

    Certificate type

  • EPD

    EPD

    Certificate type

  • EPD

    EPD

    Certificate type

A concealed, hook-on suspended metal ceiling system.

Jump to:
+44 (0)118 929 0900 Website

Application

Suitable for a range of interior applications.

Description

A suspended metal ceiling system with hook-on modular tiles and concealed grid.


Features and benefits:

  • Tiles can be manufactured to fit any module size and shape (within limitations of material).
  • Fully demountable tiles without the need for access tool.
  • Square edged tiles.
  • Closed recess joints using a 3 mm black foam, recessed gasket.
  • Concealed grid (SAS J-Bar suspension method).
  • Minimum 25 year product life expectancy.
  • Sound insulation 15–41 dB.


General information

Color

White

Guidance for specification option:

Pure white (RAL 9010).

Other

Guidance for specification option:

Full range of RAL colours optionally available, consult manufacturer for details.

Finish

Powder-coated

Guidance for specification option:

Polyester powder coating.

Other

Guidance for specification option:

Sublimation.

Material

Metal

Shape

Rectangle

Square

Other

Guidance for specification option:

Bespoke module sizes and shapes are available on request.

Length

Bespoke

Manufacturer guidance

There are no standard tile sizes for SAS200. Tiles can be up to 3000 mm in length.

Width

Bespoke

Manufacturer guidance

Minimum 300mm wide.

Height

100 mm

Guidance for specification option:

Overall construction depth.

Warranty description

One year

Uniclass

Ss_30_25_22_51 Modular suspended ceiling systemsPrimary

CAWS

K40/115 Unit/ modular suspended ceiling system

K40/10 Unit/ modular suspended ceilings

Specification data - Modular suspended ceiling systems

Classification data

Ceiling support

Concealed suspended ceiling grid, SAS J-bar suspension.

Ceiling units

Perforated metal infill units.

Acoustic insulation

Acoustic mineral wool pad with black tissue face, foil back and sides.

Guidance for specification option:

Other acoustic materials are available, please consult manufacturer.

Plasterboard and steel plate backing.

Guidance for specification option:

This will increase attenuation performance but reduce absorption performance.

Tile size

Bespoke.

Guidance for specification option:

Tiles can be up to 3000 mm in length and no less than 300 mm wide.

Bespoke module sizes and shapes are available on request. Insert requirements.

Colour/ Finish

RAL 9010 (Pure White), polyester powder-coating.

Guidance for specification option:

Standard.

Polyester powder-coating smooth.
Polyester powder-coating textured.
Polyester powder-coating antibacterial.
Polyester powder-coating anti-graffiti.
Enhanced performance PPC.
Anodized aluminium.
Special PPC mirror finish.
Special PPC high gloss.
Special PPC anodic effect.
Natural finish hand applied patination.
Sublimation.

Manufacturer guidance

  • Available in a full range of RAL colours.
  • Non-standard finishes: Consult manufacturer for details and insert colour requirements.

Perforations

D1061.
D1505.
D1513.
D1522.
D1821.
D2227.
D2324.
D2414.
D2841.
D3022.
D3136.
D3939.
D4050.
D5149.
D6051.
D6863.
D8063.
MP57.
OB19.
OB23.
OB40.
OB50.
S0702.
S1003.
S1030.
S1147.
S1511.
S1612.
S1810.
S1820.
S2051.
S2516.
S3011.
S3920.
S6015.
Bespoke.

Sustainability data

Contains Red List materials

No

Country of product manufacture

United Kingdom

Material

Metal

Product certifications

BIM objects

Platform Compatible Version
Revit
-

1

Product certifications

Cradle to Cradle Certified

Cradle to Cradle Certified

C2C Certification

EPD

EPD

Horizon Aluminium EPD

EPD

EPD

Horizon Steel EPD

Literature

SAS200

SAS200

SAS200 Isometric Application

SAS200 Isometric Application

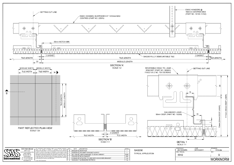
SAS200 Typical Application

SAS200 Typical Application

SAS200 Removal Sequence

SAS200 Removal Sequence

SAS200 Acoustic Performance Data Sheet

SAS200 Acoustic Performance Data Sheet

Similar products from SAS International Ltd

System 120 - Suspended Ceiling System

System 120 - Suspended Ceiling System

System 130 - Exposed Grid Lay In Ceiling System

System 130 - Exposed Grid Lay In Ceiling System

System 150

System 150

System 205 - Suspended Ceiling System

System 205 - Suspended Ceiling System

System 330

System 330

System 720 - Suspended Linear Plank Ceiling System

System 720 - Suspended Linear Plank Ceiling System

System 740 - Linear Ceiling System

System 740 - Linear Ceiling System

System 750 Tubeline - Tubular Ceiling System

System 750 Tubeline - Tubular Ceiling System

System 800 Trucell  - Open Cell Ceiling System

System 800 Trucell - Open Cell Ceiling System

System 810 Tricell - Open Cell Ceiling System

System 810 Tricell - Open Cell Ceiling System