NBS Source
I'm a manufacturer

System 800 Trucell - Open Cell Ceiling System

Verified by manufacturer 2 months ago

SAS International Ltd Product certifications:
  • EPD

    EPD

    Certificate type

An aluminium open cell ceiling system for smoke extraction and airflow management.

Jump to:
+44 (0)118 929 0900 Website

Application

Suitable for retail, transport or leisure applications with high human traffic flow.

Description

SAS800 Trucell is a decorative open cell ceiling, for airflow and smoke extraction applications. The metal ceiling system comprises a series of open cell modules designed to lay onto a suspension grid. Access is gained by simply lifting the panels out of the grid. The ceiling tiles can integrate within other metal ceiling systems and plasterboard ceilings.


Trucell allows fire detection and control systems, air conditioning and other services to be located within the ceiling void. Traditional decorative lighting and LEDs can be installed within single or multiple adjacent cells.


Features and benefits:

  • Intended for smoke extraction and airflow management.
  • Strong modular appearance.
  • Simple access to the ceiling void.
  • Lightweight, quick and easy to install.
  • Minimum 25-year product life expectancy.

General information

Color

White

Other

Guidance for specification option:

Available in full range of standard RAL colours.

Finish

Powder-coated

Guidance for specification option:

Polyester powder coating.

Material

Aluminium

Shape

Square

Rectangle

Length

600 mm

Guidance for specification option:

600 x 600 mm module.

Width

600 mm

Height

40 mm

Guidance for specification option:

Overall construction depth.

Warranty description

One year

Uniclass

Ss_30_25_22_51 Modular suspended ceiling systemsPrimary

CAWS

K40/115 Unit/ modular suspended ceiling system

K40/10 Unit/ modular suspended ceilings

Specification data - Modular suspended ceiling systems

Classification data

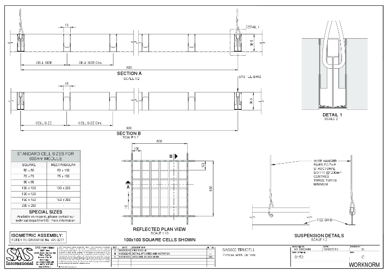
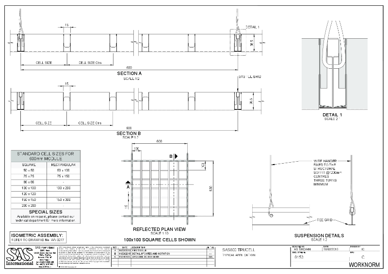
Ceiling support

15 mm Tee grid, EMAC hanger suspension.

Ceiling units

Aluminium open cell infill units.

Module size

600 x 600 mm.

Cell Size

50 x 50 mm.
75 x 75 mm.
86 x 86 mm.
100 x 100 mm.
120 x 120 mm.
150 x 150 mm.
200 x 200 mm.
50 x 100 mm.
75 x 150 mm.
100 x 200 mm.
150 x 300 mm.

Colour/ Finish

Polyester powder-coating.

Manufacturer guidance

  • Available in a full range of RAL colours.
  • Non-standard finishes: Consult manufacturer for details and insert colour requirements.

Sustainability data

Contains Red List materials

No

Country of material origin

United Kingdom

Country of product manufacture

United Kingdom

Material

Aluminium

Product certifications

BIM objects

Platform Compatible Version
Revit
-

1

Product certifications

EPD

EPD

SAS800 Trucell EPD

Literature

SAS800

SAS800

SAS800 Trucell Isometric Application

SAS800 Trucell Isometric Application

SAS800 Trucell Typical Application

SAS800 Trucell Typical Application

SAS800 Trucell Standard Module Sizes

SAS800 Trucell Standard Module Sizes

Similar products from SAS International Ltd

System 120 - Suspended Ceiling System

System 120 - Suspended Ceiling System

System 130 - Exposed Grid Lay In Ceiling System

System 130 - Exposed Grid Lay In Ceiling System

System 150

System 150

System 200  - Suspended Ceiling System

System 200 - Suspended Ceiling System

System 205 - Suspended Ceiling System

System 205 - Suspended Ceiling System

System 330

System 330

System 720 - Suspended Linear Plank Ceiling System

System 720 - Suspended Linear Plank Ceiling System

System 740 - Linear Ceiling System

System 740 - Linear Ceiling System

System 750 Tubeline - Tubular Ceiling System

System 750 Tubeline - Tubular Ceiling System

System 810 Tricell - Open Cell Ceiling System

System 810 Tricell - Open Cell Ceiling System